দেশের মাটিতে দেশের বাড়ি
দেড় শতক জায়গা। তাই বলে কিন্তু স্বপ্নটা ছোট না। টিনের চালে মনমাতানো বৃষ্টির রিমঝিম শব্দ সাথে খিচুরী আর ইলিশ ভাজা। দক্ষিণপূর্ব কোনের বিশাল বারান্দায় বসে সকালের চায়ের কাপে চুমুক দিয়ে সূর্যোদয় দেখা। স্লাইডিং জানালার বদলে সুইং জানালা থাকায় শোবার ঘরগুলোতে সারাদিন আলো-বাতাস খেলা করবে। লিভিং ডাইনিং একসাথে হওয়ায় পরিবারের সকলে মিলে জমবে আড্ডা আর মুড়ির নাড়ু খেতে খেতে টিভিতে বাংলার টাইগারদের চার-ছয় মারাতো আছেই। স্কাইলাইট দিয়ে ঘরের গরম বাতাস যেমন বের হবে, আবার শুয়ে শুয়ে দেখা যাবে নীল আকাশ। টিনের নিচে ইন্সুলেটর থাকায় গরমে ঘর থাকবে ঠান্ডা আর শীতে গরম। পশ্চিমের জানালা দিয়ে গনগনে সূর্যের আলো এসে বাথরুমকে রাখবে জীবানুমুক্ত।
একটি সুস্থ-সুন্দর পরিবেশে বেড়ে উঠবে সন্তান- আগামী প্রজন্ম- এটাই স্বপ্ন।
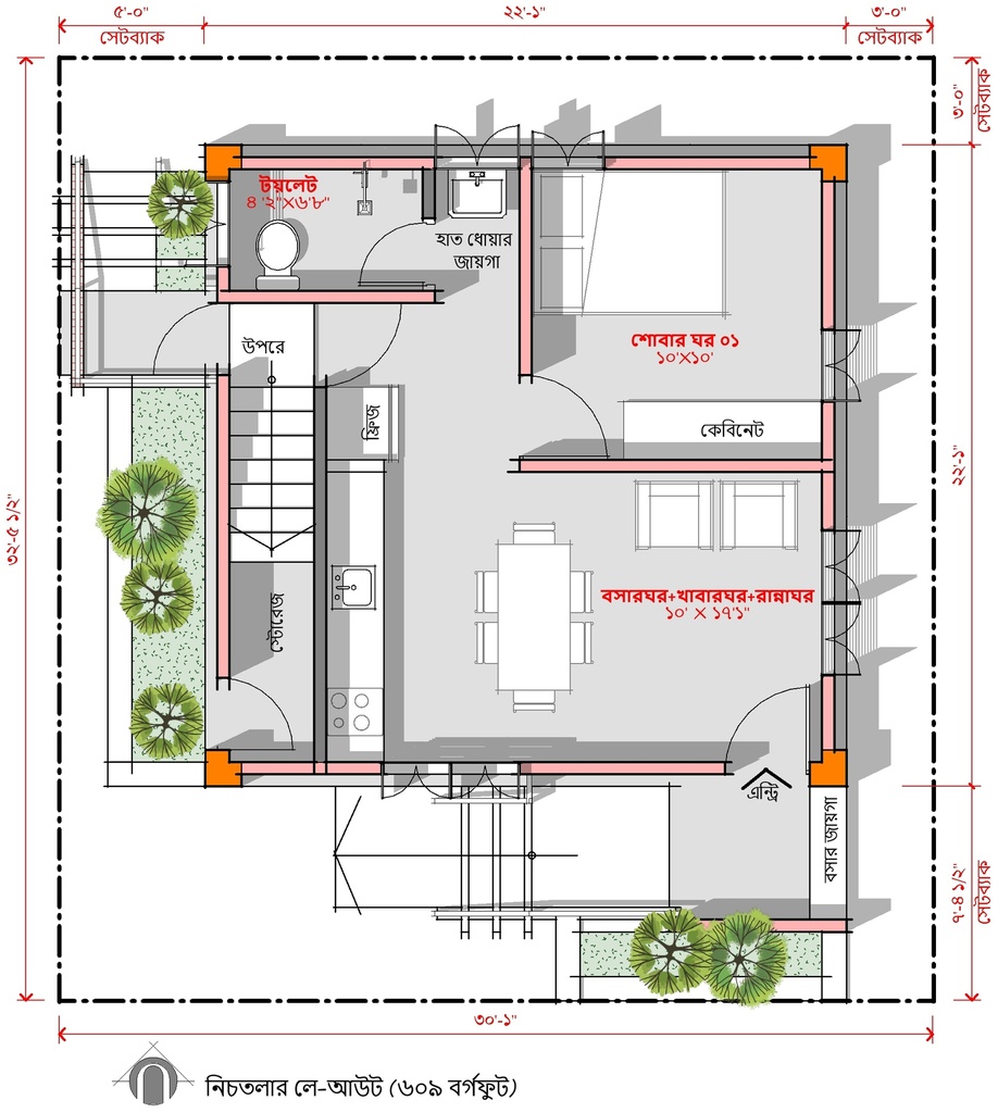
| প্রয়োজনীয় জমির পরিমান | ৩০ ফুট - ১০ ইঞ্চি X ২৫ ফুট - ১০ ইঞ্চি |
| টোটাল ফ্লোর এরিয়া | ১০৬৪ বর্গফুট |
| বিল্ডিং এর উচ্চতা | দোতলা |
| শোবার ঘরের সংখ্যা | ৩ টি |
| টয়লেটের সংখ্যা | ২ টি |
| ফাউন্ডেশন সিস্টেম | আর সি সি ফাউন্ডেশন |
| মাস্টার বেডরুম সাইজ | ১০ ফুট x ১০ ফুট |
| অন্যান্য বেডরুম সাইজ | ১০ ফুট x ১০ ফুট |
| এটাচড টয়লেট | ১ টি |
| কমন টয়লেট | ১ টি |
| রান্নাঘরের টাইপ | খোলা রান্নাঘর |
| ড্রইং + ডাইনিং + রান্নাঘর | ১০ ফুট X ১৭ ফুট - ১ ইঞ্চি |
| ছাদ | টিনের ছাদ |
১. রডঃ জি পি এইচ/ এ কে এস / আনোয়ার ইস্পাত / সমমানের
২. সিমেন্টঃ সেভেন রিং/ ফ্রেশ / সমমানের
৩. বালুঃ ২.৫ এফ.এম সিলেট বালু ১.৫ এফ.এম মাঝারি ধরনের স্থানীয় বালু।
৪. ইটঃ উন্নতমানের ১ নং ইট (1st class brick) ব্যবহার করা হবে।
৫. গ্যাস পাইপঃ আর এফ এল / সমমানের।
৬. ফাউন্ডেশনঃ ব্রিক-কংক্রিট ফাউন্ডেশন সিস্টেম।
৭. গ্রাউন্ড ফ্লোরসহ বিল্ডিং এর চতুর্দিকে উঁইপোকা প্রতিরোধমূলক ব্যবস্থা গ্রহণ করা হবে।
৮. আদর্শ মানের অগ্নি-প্রতিরোধক ব্যবস্থা থাকবে।
৯. ইলেকট্রিক সুইচ, সকেট, সার্কিটব্রেকার এবং অন্যান্য ফিটিংস সুপারস্টার / সমমানের হবে।
১০. ইলেক্ট্রিক ওয়্যারিং বি আর বি / পলি কেবলস / সমমানের কেবল হবে।
১১. সেনিটারী ওয়্যারিং ইউ পি ভি সি পাইপ দিয়ে করা হবে।
১২. ওয়াটার রিজার্ভার হিসেবে গাজী ট্যাঙ্ক ব্যবহার করা হবে।
১৩. জানালায় এম, এস বারের নিরাপত্তা গ্রীল থাকবে এবং ডিজাইন অনুসারে এনামেল পেইন্ট হবে।
১৪. টয়লেটের ফ্লোর ছাড়া সর্বত্র নেট ফিনিশের ফ্লোর হবে।
১৫. পাওয়ার পয়েন্টে প্রয়োজন অনুযায়ী আর্থিং সংযোগ থাকবে।
১৬. ভবনের চারপাশে ৪টি সিকিউরিটি লাইট পয়েন্ট থাকবে।
১৭. শোবার ঘরঃ
ক. বায়ু চলাচলের জন্য দুই ওয়ালে জানালা থাকবে।
খ. ৭ফিটের উপর কংক্রিট স্ল্যাবের স্টোর থাকবে।
১৮ . টয়লেটঃ
ক. বাথরুমের দরজা পানিরোধক পিভিসি ডোর হবে।
খ. প্রতি টয়লেটে উন্নত মানের ১টি সাবানদানী, ১টি টাওয়াল রেইল এবং ১টি টিস্যু হোল্ডার, ১টি আয়না, আয়নার সামনে ১টি লাইটের পয়েন্ট ও ১টি এক্সস্ট ফ্যানের পয়েন্ট থাকবে।
গ. টয়লেটে কমোড, বেসিন স্টার, চারুতা / সমমানের হবে।
ঘ. টয়লেটের ওয়ালে নেট ফিনিশ এবং ফ্লোরে ১২” X ১২” সিরামিক টাইলস হবে।
১৯. রান্নাঘরঃ
ক. উন্নত মানের স্টেইনলেস স্টিলের সিঙ্ক থাকবে।
খ. এক্সস্ট ফ্যানের পয়েন্ট থাকবে। ফ্রিজ এর জন্য পাওয়ার পয়েন্ট থাকবে।
গ. রান্নাঘরে কাজের জন্য মেঝে থেকে ২৯ ইঞ্চি উপরে সিরামিক টাইলস সহ কংক্রিটের স্ল্যাব হবে।
ঘ. ডাবল বার্নার গ্যাসের চুলা লাগানোর পয়েন্ট থাকবে।
২০. ড্রইং কাম ডাইনিং রুমঃ
ক. বসার জন্য ১৮ ইঞ্চির উপরে কংক্রিটের স্ল্যাব হবে।
খ. আকাশ স্যাটেলাইটের পয়েন্ট থাকবে।
২১. সিঁড়িঃ
ক. রাফ ফিনিশ সহ প্রি-কাস্ট কংক্রিট স্ল্যাব দিয়ে করা হবে।
২২. দরজা ও জানালাঃ
ক. দরজা জানালার সব চৌকাঠ এনামেল পেইন্ট সহ এম এস এংগেল-এর তৈরি হবে।
খ. জানালা সব সুইং সিস্টেমের হবে এবং ৫ মি মি পুরু স্বচ্ছ কাঁচ থাকবে।
গ. মেইন এন্ট্রি ডোর আধুনিক ডিজাইনের ফ্ল্যাশ ডোর হবে।
ঘ. বেডরুমের দরজা উন্নতমানের ফ্ল্যাশ ডোর হবে।
২৩. ছাদঃ
ক. এনামেল পেইন্ট সহ এম এস এঙ্গেল এর ফ্রেম এর উপর উন্নতমানের ঢেউ টিন থাকবে।
খ. তাপমাত্রা নিয়ন্ত্রণের জন্য ঢেউ টিনের নিচে ১৮ মি মি পুরু ইন্সুলেটর থাকবে।
কিস্তি | সময় | টাকার পরিমান |
বুকিং মানি | চুক্তিপত্রে স্বাক্ষর করার | ৫০,০০০ |
কিস্তি ০১ | কাজ শুরু করার ১৫ দিন আগে ৬০% | ১৫,৬০,০০০ |
কিস্তি ০২ | কাজ শুরুর ৪৫ দিন পর ২০% | ৫,২০,০০০ |
কিস্তি ০৩ | কাজ শুরুর ৬০ দিন পর ১০% | ২,৬০,০০০ |
কিস্তি ০৪ | কাজ শুরুর ৭৫ দিন পর ১০% | ২,৬০,০০০ |
সর্বমোটঃ ২৬,৫০,০০০ |
সমস্ত আগ্রহী ক্রেতাদেরকে নকশাঘর সরবরাহকৃত একটি নির্ধারিত আবেদনপত্রে আবেদন করতে হবে এবং বায়নার অর্থ সহ আবেদনপত্র যথাযথভাবে স্বাক্ষর করতে হবে। বায়না প্রাপ্তির ত্রিশ দিনের মধ্যে নির্মাণ কাজ শুরু করা হবে। কোম্পানী কোন কারণ প্রদর্শন ব্যতীত একটি আবেদনপত্র প্রত্যাখ্যান / গ্রহণ করার অধিকার সংরক্ষণ করে।
যে স্থানে প্রকল্পটি নির্মাণ করা হবে সেখানকার মাটির ভারবহন ক্ষমতা যদি প্রস্তাবিত ফাউন্ডেশন এর সাথে সামঞ্জস্যপূর্ণ না হয় তবে নতুন ফাউন্ডেশন পদ্ধতির জন্য প্রকল্পের মূল্য পরিমার্জন করতে হবে এছাড়া চুক্তি করার সময় বাজারদর বিবেচনা করে প্রকল্পের প্রাক্কলিত মূল্য পরিবর্তন হতে পারে।
বিদ্যমান কাঠামো অপসারণ করে সাইট নির্মাণের জন্য উপযোগী করার খরচ এবং সংযোগ চার্জ যেমন গ্যাস, জল, পয়ঃনিষ্কাশন (সেপ্টিক ট্যাঙ্ক ও সোক ওয়েল) , বৈদ্যুতিক সংযোগ, লেবার শেড, অস্থায়ী টয়লেট, মালামাল রাখার অস্থায়ী স্টোর এর খরচ বিল্ডিং এর মূল্যের সাথে অন্তর্ভুক্ত নয়।
নির্মাণকাজ শুরু করার পর থেকে নব্বই দিনের মধ্যে নকশাঘর নির্মাণকাজ সমাপ্ত করবে। নির্ধারিত তারিখের পরে বিলম্বিত অর্থ প্রদানের জন্য ক্রেতাকে প্রতি ১০ দিনে ১% হারে বিলম্বের চার্জ পরিশোধ করতে হবে। ২১ দিনের বেশী বিলম্বিত হলে নকশাঘর কোনো নোটিশ ছাড়াই নির্মাণকাজ বন্ধ অথবা বাতিল করতে পারে। এই ক্ষেত্রে পুনরায় কাজ শুরু করার জন্য ৫% হারে বিলম্ব ফি প্রদানের পর পুনরায় নির্মাণকাজ শুরু হবে।
নকশাঘর প্রকল্পের স্থাপত্য এবং কাঠামোগত নকশা উভয় ক্ষেত্রেই পরিবর্তন করার অধিকার সংরক্ষণ করে এবং প্রকল্পের সামগ্রিক স্বার্থে বাড়ীর বৈশিষ্ট্যে পরিবর্তন আনতে পারে।
প্রাকৃতিক বিপর্যয়, গৃহযুদ্ধ, ধর্মঘট, স্থানীয় ও আন্তর্জাতিক রাজনৈতিক পরিস্থিতি, পরম করুনাময় প্রদত্ত অনাকাংখিত পরিস্থিতি যা কোম্পানীর নিয়ন্ত্রণের বাইরে - এসব ক্ষেত্রে, প্রকল্প বিলম্বিত হলে এর দায় কোম্পানি বহন করবে না এবং প্রয়োজনে এসব সমস্যা মোকাবিলা করার জন্য কোম্পানী ক্রেতার সাথে আলোচনা সাপেক্ষে বিল্ডিং এর মূল্য পুনঃনির্ধারণ করতে পারে।
নির্মাণকাজ শুরুর পূর্বে প্রথম পক্ষকে বিদ্যুৎ ও পানির নিরবিচ্ছিন্ন সংযোগ নিশ্চিত করতে হবে। সংযোগ স্থাপনের সকল খরচ প্রথম পক্ষ বহন করবে। নির্মাণকাজ চলাকালীন সময়ে বিদ্যুৎ ও পানির বিল নকশাঘর বহন করবে। এবং নির্মাণকাজ শেষে সাইটের সকল আবর্জনা অপসারনের খরচ ক্রেতা বহন করবে।
সাইট পর্যন্ত মালামাল সরবরাহ করার জন্য ট্রাক থেকে আনলোড করার পর ত্রিশ ফিট পর্যন্ত মালামাল পরিবহন নকশাঘর এর দায়িত্বে থাকবে, ত্রিশ ফিট এর বেশী হলে মালামাল পরিবহনের জন্য অতিরিক্ত খরচ ক্রেতাকে বহন করতে হবে।
জমির প্রকৃত মালিক অথবা জমির মালিকের প্রতিনিধি ( জমির মালিক কর্তৃক দায়িত্বপ্রাপ্ত নির্ধারিত ব্যক্তি ) নকশাঘরের সাথে চুক্তিবদ্ধ হতে পারবে। প্রতিনিধির সাথে চুক্তির ক্ষেত্রে চুক্তিপত্রের সাথে সম্মতিপত্র সংযুক্ত করতে হবে।
ক্রয়কারী মূল্য পরিশোধের সময়সূচী অনুযায়ী অর্থ প্রদান করবে। সমস্ত পেমেন্ট A/C প্রাপক চেক বা ব্যাঙ্ক ড্রাফ্ট বা পে-অর্ডার বা নকশাঘর লিমিটেডের পক্ষে নগদ প্রদান করতে হবে। বিদেশ থেকে মার্কিন ডলারে অর্থপ্রদানের তারিখে বাংলাদেশী টাকায় বর্তমান সরকারী রূপান্তর হারে গণনা করা হবে।
প্রাক্কলিত মূল্য ভ্যাট ও ট্যাক্স ছাড়া।